Objektart
Mieten / Kaufen
Ort / Stadt


Zentrum/Ost - Tolle 4 Zi.-Whg., 3 Balkone, Parkett, FuBoHeizg., Lift -vermietet

Objekt ID: 3904 (1/3904)
04315  Leipzig
Melanchtonstr.   6
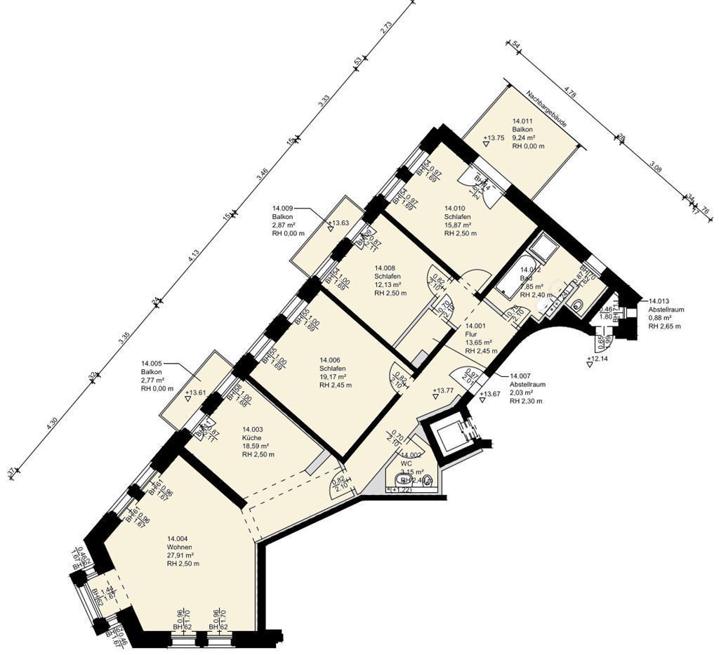
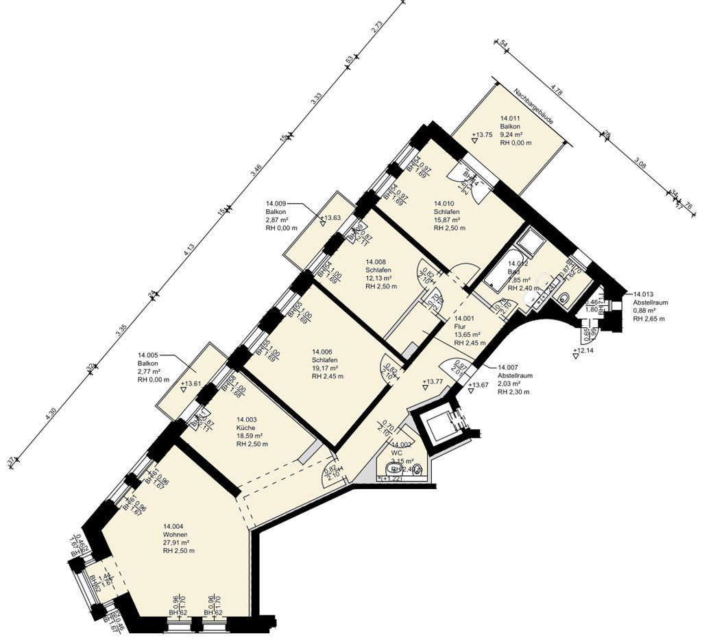
4 Zimmer
Fläche ca.
Kaufobjekt
gesch. Rate:  
Finanzierung berechnen
420.000 €
Kaufpreis
3,57 % inkl. 19% MwSt. (Käuferprovision)
Käuferprovision

ZUSATZINFORMATIONEN

Kaufpreis:
420.000,00 €
Käuferprovision
3,57 % inkl. 19% MwSt. (Käuferprovision)
Wohnfläche ca.:
129,79 m²
Zimmer:
4,0
Schlafzimmer:
3
Badezimmer:
2
Balkone:
3
Etage:
4. OG
Status
Vermietet

Ausstattung

Ausstattung
GEHOBEN
Tageslichtbad
Dusche
Badewanne
Einbauküche
offene Küche
Fliesenboden
Parkettboden
Fernwärme
Fussbodenheizung
Personenaufzug
Abstellraum
Gäste WC
Baujahr:
1900
Zustand:
Vollsaniert
Altbau

Energiepass

Energiepass Art:
Verbrauch
gültig bis:
25.03.2034 00:00:00
Verbrauchkennwert:
77 kWh/(m²a)
Primärenergieträger:
Fernwärme
Energieeffizienzklasse:
C
Baujahr:
1900/2016
Ausstelldatum:
2024-03-25
Jahrgang:
2014
Gebäudeart:
wohn

Objektbeschreibung

liebevoll sanierter Altbau aus 2016 Die Wohnung ist seit November 2017 vermietet. Die letzte Mieterhöhung war zum April 2022. Die aktuelle Kaltmiete beträgt 1.085,04 €. Die jährliche Mieteinnahme beträgt 13.008,48 €

Lage

Die 4 Zimmer Wohnung befindet sich in der begehrten Melanchtonstraße im Herzen von Leipzig. Die Lage zeichnet sich durch ihre hervorragende Infrastruktur und die angenehme Nachbarschaft aus. In unmittelbarer Nähe finden Sie zahlreiche Einkaufsmöglichkeiten, Supermärkte, Cafés und Restaurants, die den Alltag bequem gestalten. Die Anbindung an den öffentlichen Nahverkehr ist ausgezeichnet: Mehrere Tram- und Buslinien sind fußläufig erreichbar, was eine schnelle Verbindung in die Innenstadt und zu anderen Stadtteilen ermöglicht. Die Leipziger Innenstadt ist nur wenige Minuten entfernt und bietet eine Vielzahl an kulturellen Angeboten, Einkaufsmöglichkeiten und Freizeitaktivitäten. Für Naturliebhaber ist die Nähe zu Grünflächen wie dem Johannapark ideal, der zu Spaziergängen und Erholung einlädt. Zudem sind Schulen, Kindergärten und medizinische Einrichtungen in der Umgebung vorhanden, was die Lage besonders familienfreundlich macht. Insgesamt bietet die Melanchtonstraße eine attraktive Mischung aus urbanem Leben und ruhigem Wohnen, perfekt für alle, die das lebendige Leipzig in Kombination mit einer angenehmen Wohnumgebung schätzen.

Ausstattung

Attraktive 4-Zimmer-Wohnung mit hochwertiger Ausstattung in Leipzig Diese gepflegte und modern ausgestattete 4-Zimmer-Wohnung befindet sich in einer begehrten Lage in Leipzig und ist derzeit vermietet. Sie überzeugt durch ihre großzügige Raumaufteilung, zahlreiche Annehmlichkeiten und eine hochwertige Ausstattung. Highlights im Überblick: Großzügige Raumaufteilung: Vier helle Zimmer bieten vielfältige Nutzungsmöglichkeiten – ideal für Familien, Paare oder als Kapitalanlage. Modernes Hauptbad: Das Badezimmer verfügt über ein Fenster, eine Badewanne, eine separate Dusche sowie einen Doppelwaschtisch und ist stilvoll modern gestaltet. Gäste-WC: Zusätzlich steht ein Gäste-WC zur Verfügung, was den Komfort zusätzlich erhöht. Abstellraum: Ein praktischer Abstellraum in der Wohnung sorgt für ausreichend Stauraum. Drei Balkone: Die Wohnung verfügt über drei Balkone, die zum Entspannen im Freien einladen. Hochwertiger Parkettboden: Der elegante Parkettboden verleiht den Räumen eine warme und hochwertige Atmosphäre. Fußbodenheizung: Für angenehme Wärme sorgt die moderne Fußbodenheizung in der gesamten Wohnung. Inklusive Einbauküche: Die moderne Einbauküche ist im Kaufpreis enthalten und bietet alles, was man für den täglichen Bedarf benötigt. Komfortabler Fahrstuhl: Das Haus ist mit einem Fahrstuhl ausgestattet, der den Zugang erleichtert. Kellerabteil: Ein eigenes Kellerabteil bietet zusätzlichen Stauraum. Deckenspots im Flur und in den Bädern: Die stilvollen Deckenspots in der Wohnung sorgen für eine angenehme und moderne Beleuchtung.

sonstige Angaben

Haftungsausschluss Sämtliche Angaben in den Exposés bzw. Angaben zu den Objekten sind nach bestem Wissen und Gewissen erstellt und beruhen auf Angaben des Verkäufers oder Vermieters, bei geschätzten Größen handelt es sich um ca. Angaben, eine Haftung durch die Firma Heidrun Walther-Zierof Immobilien kann nicht übernommen werden. Sie sind selbst Eigentümer und suchen einen kompetenten Partner für die Vermarktung Ihrer Objekte? Sprechen Sie uns an - wir helfen Ihnen gern. Weitere Wohnungen finden Sie auf unserer Homepage www.walther-sohn.de

INTERESSE GEWECKT?

Objektdaten Drucken

Ihr Ansprechpartner

Marcus Walther
Diese E-Mail-Adresse ist vor Spambots geschützt! Zur Anzeige muss JavaScript eingeschaltet sein!
+49 341 4217273
+49 176 99638425

WEITER EMPFEHLENan Freunde und Familie


Weitere interessante Immobilien


 Merkzettel (0) KONTAKT
Wir benutzen Cookies
Wir nutzen Cookies auf unserer Website. Diese sind essenziell für den Betrieb der Seite - sogenannte Session-Cookies. Sie können selbst entscheiden, ob Sie die Cookies zulassen möchten. Bitte beachten Sie, dass bei einer Ablehnung womöglich nicht mehr alle Funktionalitäten der Seite zur Verfügung stehen.