Objektart
Mieten / Kaufen
Ort / Stadt


Großzügige 2-Raum Whg. mit Dachterrasse, EBK, 2 Bäder, Fubo-Heizung, Klimaanlage

Objekt ID: Erdmannsh. DG (1/2790)
04683  Naunhof b Grimma
Erdmannshainer Str.   38
2 Zimmer
Fläche ca.
Mietobjekt
999 €
Kaltmiete:
1.239 €
Warmmiete
Provisionsfrei!
Käuferprovision

ZUSATZINFORMATIONEN

Kaltmiete:
999,00 €
Warmmiete:
1.239,00 €
Kaution:
2.000,00 €
Wohnfläche ca.:
80,00 m²
Zimmer:
2,0
Schlafzimmer:
1
Badezimmer:
2
Balkone:
1
Balkon- / Terrassenfläche:
5,50 m²
Etage:
3. OG
verfügbar ab
01.04.2026

Ausstattung

Ausstattung
GEHOBEN
Tageslichtbad
Dusche
Badewanne
Einbauküche
Laminatboden
Marmorboden
Fussbodenheizung
Gasbefeuerung
Klimaanlage
Gartennutzung
Wasch und/oder Trockenraum vorhanden
Zustand:
Vollsaniert
Altbau

Energiepass

Jahrgang:
nicht_noetig

Objektbeschreibung

Freistehende herrschaftliche Villa umzäunt vom alten Baumbestand und großzügiger Gartenanlage.

Lage

Die Villa befindet sich in Naunhof, einer gemütlichen Gemeinde, südöstlich von Leipzig entfernt und bietet Familien einen schönen Platz zum Leben, Einkaufsmöglichkeiten in unmittelbarer Umgebung. Kurze Wege zu Schulen und Kindergärten sind genauso gegeben wie die Anbindung ins Grüne. Grillensee, Waldbad sind nur einen kurzen Ausflug mit dem Rad entfernt. Durch die Nähe zur A 14 und A 38 liegt Naunhof für Pendler gut zwischen Grimma, Leipzig, Halle.

Ausstattung

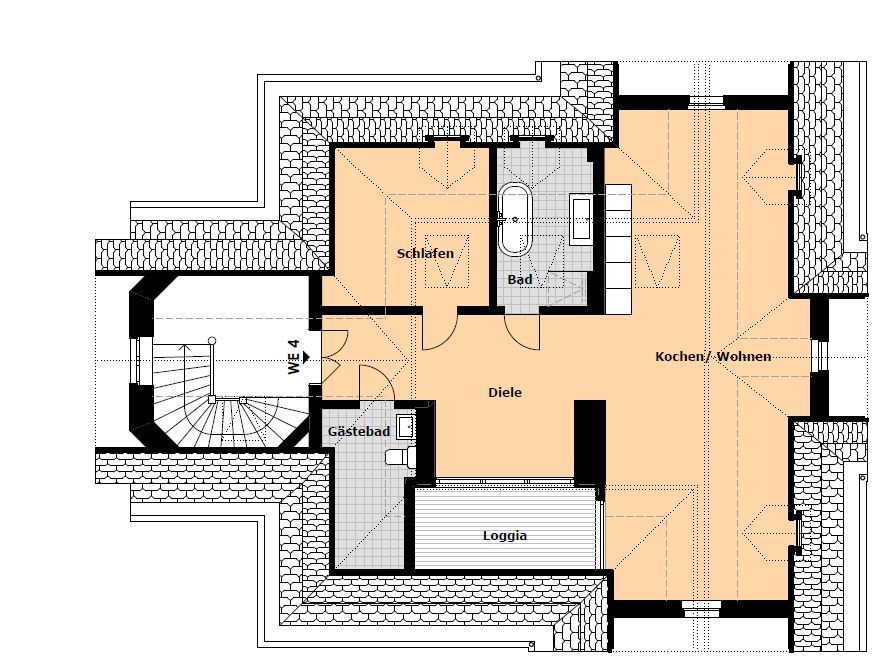
Die Wohnung erstreckt sich über das gesamte Dachgeschoss. Eine Klimaanlage schafft Abkühlung an heißen Sommertagen. Zusätzliche Oberlichter bringen Helligkeit in Wohn- und Schlafraum. Genießen Sie den Sommer auf ihrer Dachterrasse oder in ihrem eigenen Gartenanteil auf dem Grundstück. Fußbodenheizung in allen Räumen. Die Wohn- und Schlafräume, sowie der Flur sind mit Laminat ausgestattet, die Bäder erstrahlen in weißem Marmor. Ein Bad mit Fenster, Wanne und Dusche, sowie ein Gäste-WC vorhanden. Die Küche wird mit einer hochwertigen Einbauküche mit High End Geräten ausgestattet und ist im Mietpreis bereits inklusive. Ein Kühlschrank ist nicht vorhanden. Ein Keller gehört ebenfalls zur Wohnung. Zusätzlicher Hauswirtschaftsraum im Kellergeschoss mit Waschmaschinenanschluss. Ein Stellplatz auf dem Grundstück ist ebenfalls im Mietpreis inklusive.

sonstige Angaben

Haftungsausschluss Sämtliche Angaben in den Exposés bzw. Angaben zu den Objekten sind nach bestem Wissen und Gewissen erstellt und beruhen auf Angaben des Verkäufers oder Vermieters, bei geschätzten Größen handelt es sich um ca. Angaben, eine Haftung durch die Firma Heidrun Walther-Zierof Immobilien kann nicht übernommen werden. Aufgrund des Baudenkmals, ist kein Energieausweis erforderlich. Achtung: Bitte beachten Sie die Mindestmietdauer von 24 Monaten. Weitere Wohnungen finden Sie auf unserer Homepage www.walther-sohn.de Sie sind selbst Eigentümer und suchen einen kompetenten Partner für die Vermarktung Ihrer Objekte? Sprechen Sie uns an - wir helfen Ihnen gern.

INTERESSE GEWECKT?

Objektdaten Drucken

Ihr Ansprechpartner

Frau
Sandra Zeller
Diese E-Mail-Adresse ist vor Spambots geschützt! Zur Anzeige muss JavaScript eingeschaltet sein!
+49 341 4217273
+49 171 2031902

WEITER EMPFEHLENan Freunde und Familie


Weitere interessante Immobilien


 Merkzettel (0) KONTAKT
Wir benutzen Cookies
Wir nutzen Cookies auf unserer Website. Diese sind essenziell für den Betrieb der Seite - sogenannte Session-Cookies. Sie können selbst entscheiden, ob Sie die Cookies zulassen möchten. Bitte beachten Sie, dass bei einer Ablehnung womöglich nicht mehr alle Funktionalitäten der Seite zur Verfügung stehen.