Objektart
Mieten / Kaufen
Ort / Stadt


Attraktives freistehendes Bürohaus im Gewerbegebiet Schkeuditz-Dölzig

Objekt ID: 3914 (1/3914)
04435  Schkeuditz
Westringstr.   59
11 Zimmer
Fläche ca.
Mietobjekt
3.800 €
Kaltmiete:
4.800 €
Warmmiete
Provisionsfrei!
Käuferprovision

ZUSATZINFORMATIONEN

Kaltmiete:
3.800,00 €
Warmmiete:
4.800,00 €
Kaution:
7.600,00 €
Bürofläche:
471,08 m²
Zimmer:
11,0
Badezimmer:
6
Stellplätze:
12
verfügbar ab
ab sofort

Ausstattung

Die Räume können anders eingeteilt werden
Tageslichtbad
Einbauküche
Fliesenboden
Teppichboden
Zentralheizung
Gasbefeuerung
Klimaanlage
DV-Verkabelung vorhanden
Teeküche
Abstellraum
Gäste WC
Baujahr:
1993
Zustand:
gepflegt
Neubau

Energiepass

Energiepass Art:
Verbrauch
gültig bis:
22.09.2030 00:00:00
Verbrauchkennwert:
217,9 kWh/(m²a)
ohne Warmwasser
Primärenergieträger:
Gas
Energiekw.-Strom
16.90 kWh/(m²a)
Energiekw.-Wärme
217.90 kWh/(m²a)
Energieeffizienzklasse:
G
Ausstelldatum:
2020-09-23
Jahrgang:
2014
Gebäudeart:
nichtwohn

Objektbeschreibung

Attraktives freistehendes Bürohaus (Baujahr 1993) im Gewerbegebiet Schkeuditz-Dölzig Weitere Bilder folgen in Kürze.

Lage

Das Gewerbegebiet Schkeuditz-Dölzig liegt strategisch günstig zwischen den Großstädten Leipzig und Halle und überzeugt durch seine hervorragende Verkehrsanbindung. Die Autobahnen A9, A14 und A38 sind in wenigen Minuten erreichbar. Ebenso befinden sich das Einkaufszentrum Nova Eventis sowie der Flughafen Leipzig/Halle in unmittelbarer Nähe. Die Umgebung ist geprägt von einem nahezu vollständig vermieteten Bestand an Bürogebäuden, Hotels, Produktionsunternehmen sowie namhaften Institutionen wie dem ADAC und weiteren etablierten Firmen. Der Standort eignet sich ideal für Unternehmen, die eine langfristige und repräsentative Bürofläche suchen.

Ausstattung

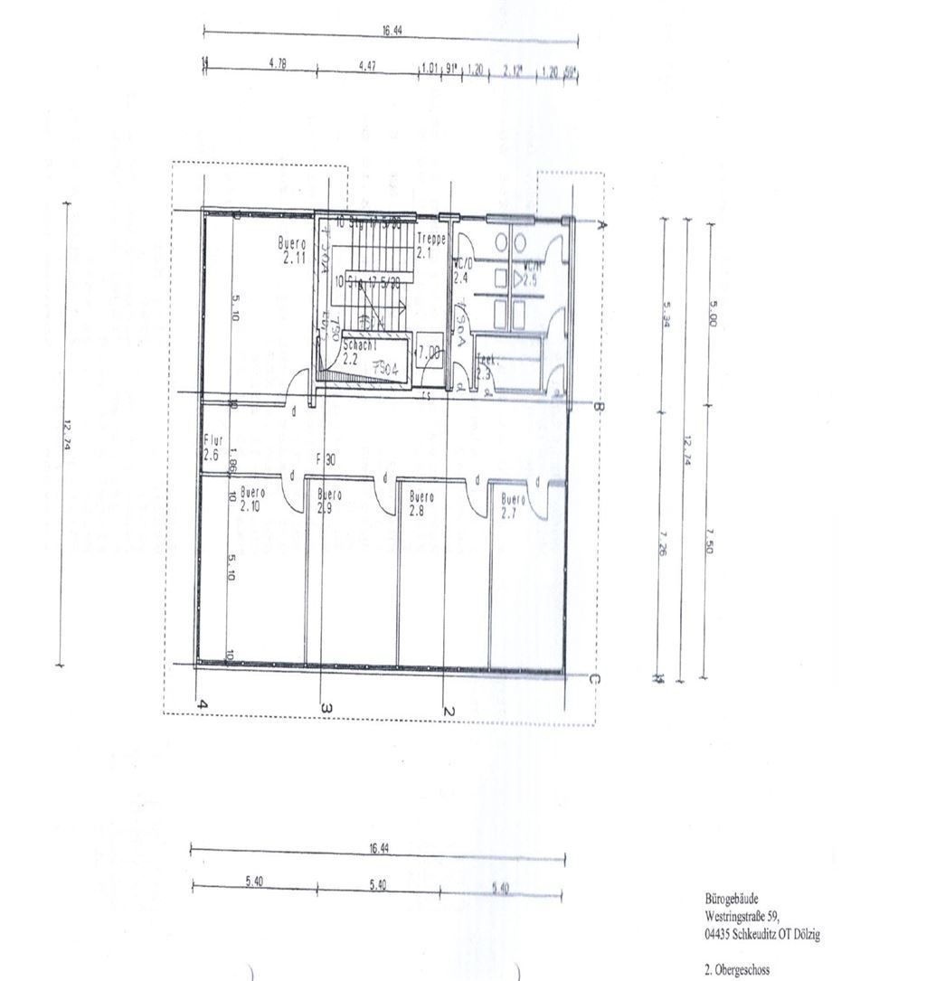
Das freistehende Bürohaus verfügt über drei vollwertige Geschosse sowie einen Technik- und Heizungsraum im Dachgeschoss. Im Erdgeschoss empfängt ein großzügiger, stufenloser Eingangs- und Empfangsbereich, von dem aus die Büroräume auf der rechten und linken Seite sowie das Treppenhaus mit Zugang zu den oberen Etagen erreichbar sind. Sowohl die beiden Büros im Erdgeschoss als auch jede Etage verfügen jeweils über separat abschließbare Zugänge. Dadurch eignet sich das Gebäude sowohl für unterschiedliche Abteilungen eines Unternehmens als auch für die Nutzung durch mehrere Unternehmen unter einem Dach. Die Büroaufteilung gestaltet sich wie folgt: Erdgeschoss: 3 Büroräume Obergeschoss: 4 Büroräume Obergeschoss: 4 Büroräume Insgesamt stehen ein großzügiger Empfangsbereich sowie 11 helle Büroräume zur Verfügung. Auf jeder Etage befinden sich separate Damen- und Herren-WCs. Im 1. und 2. Obergeschoss ist jeweils eine kleine Einbauküche vorhanden. Bei Bedarf kann auch im Erdgeschoss eine Küche eingeplant werden. Das Grundstück überzeugt durch eine gepflegte Grünfläche mit Rasen, Ziersträuchern und einem Baum. Zudem stehen mehr als 10 PKW-Stellplätze zur Verfügung. Drei Flaggenmasten bieten zusätzliche Möglichkeiten zur Unternehmenspräsentation. Ein weiterer Vorteil ist das hohe Sicherheitsniveau des Areals, das unter anderem durch bewachte Nachbarliegenschaften gewährleistet wird. Dies wirkt sich positiv auf das gesamte Umfeld aus. Das Bürohaus wird vollständig und exklusiv überlassen, sodass keine Beeinträchtigungen durch weitere Nutzer entstehen. Die Vermietung erfolgt zzgl. Mehrwertsteuer (Option zur Umsatzsteuer). Nutzfläche 471,08 m2 Bruttogrundfläche - 715,32

sonstige Angaben

Haftungsausschluss Sämtliche Angaben in den Exposés bzw. Angaben zu den Objekten sind nach bestem Wissen und Gewissen erstellt und beruhen auf Angaben des Verkäufers oder Vermieters, bei geschätzten Größen handelt es sich um ca. Angaben, eine Haftung durch die Firma Heidrun Walther-Zierof Immobilien kann nicht übernommen werden.   Sie sind selbst Eigentümer und suchen einen kompetenten Partner für die Vermarktung Ihrer Objekte? Sprechen Sie uns an - wir helfen Ihnen gern.

INTERESSE GEWECKT?

Objektdaten Drucken

Ihr Ansprechpartner

Marcus Walther
Diese E-Mail-Adresse ist vor Spambots geschützt! Zur Anzeige muss JavaScript eingeschaltet sein!
+49 341 4217273
+49 176 99638425

WEITER EMPFEHLENan Freunde und Familie


Weitere interessante Immobilien


 Merkzettel (0) KONTAKT
Wir benutzen Cookies
Wir nutzen Cookies auf unserer Website. Diese sind essenziell für den Betrieb der Seite - sogenannte Session-Cookies. Sie können selbst entscheiden, ob Sie die Cookies zulassen möchten. Bitte beachten Sie, dass bei einer Ablehnung womöglich nicht mehr alle Funktionalitäten der Seite zur Verfügung stehen.