Objektart
Mieten / Kaufen
Ort / Stadt


Bezugsfrei - Zentrum/Ost - Tolle 2-Zi.-Whg., 2 Balkone, Parkett/FuBoHeizg. und Aufzug

Objekt ID: 3894 (1/3894)
04315  Leipzig
2 Zimmer
Fläche ca.
Kaufobjekt
gesch. Rate:  
Finanzierung berechnen
240.000 €
Kaufpreis
3,57 % inkl. 19% MwSt. (Käuferprovision)
Käuferprovision

ZUSATZINFORMATIONEN

Kaufpreis:
240.000,00 €
Käuferprovision
3,57 % inkl. 19% MwSt. (Käuferprovision)
Wohnfläche ca.:
74,76 m²
Zimmer:
2,0
Schlafzimmer:
1
Badezimmer:
1
Balkone:
2
Etage:
2. OG

Ausstattung

Ausstattung
GEHOBEN
Tageslichtbad
Dusche
Badewanne
offene Küche
Fliesenboden
Parkettboden
Fernwärme
Fussbodenheizung
Personenaufzug
Abstellraum
Baujahr:
1900
Zustand:
Vollsaniert
Altbau

Energiepass

Energiepass Art:
Verbrauch
gültig bis:
25.03.2034 00:00:00
Verbrauchkennwert:
77 kWh/(m²a)
Primärenergieträger:
Fernwärme
Energieeffizienzklasse:
C
Baujahr:
1900/2016
Ausstelldatum:
2024-03-25
Jahrgang:
2014
Gebäudeart:
wohn

Objektbeschreibung

liebevoll sanierter Altbau aus 2016 Bezgugsfreie Wohnung, ideal für Selbstnutzer oder Kapitalanleger. Gern übernehmen wir auch die Vermietung für Sie!

Lage

Die 2-Zimmer-Wohnung befindet sich in der begehrten Melanchtonstraße im Herzen von Leipzig. Die Lage zeichnet sich durch ihre hervorragende Infrastruktur und die angenehme Nachbarschaft aus. In unmittelbarer Nähe finden Sie zahlreiche Einkaufsmöglichkeiten, Supermärkte, Cafés und Restaurants, die den Alltag bequem gestalten. Die Anbindung an den öffentlichen Nahverkehr ist ausgezeichnet: Mehrere Tram- und Buslinien sind fußläufig erreichbar, was eine schnelle Verbindung in die Innenstadt und zu anderen Stadtteilen ermöglicht. Die Leipziger Innenstadt ist nur wenige Minuten entfernt und bietet eine Vielzahl an kulturellen Angeboten, Einkaufsmöglichkeiten und Freizeitaktivitäten. Für Naturliebhaber ist die Nähe zu Grünflächen wie dem Johannapark ideal, der zu Spaziergängen und Erholung einlädt. Zudem sind Schulen, Kindergärten und medizinische Einrichtungen in der Umgebung vorhanden, was die Lage besonders familienfreundlich macht. Insgesamt bietet die Melanchtonstraße eine attraktive Mischung aus urbanem Leben und ruhigem Wohnen, perfekt für alle, die das lebendige Leipzig in Kombination mit einer angenehmen Wohnumgebung schätzen.

Ausstattung

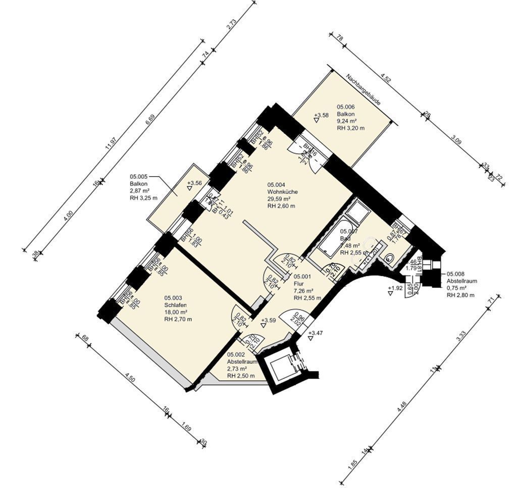
Die gut geschnittene 2 Raumwohnung befindet sich in der 2.Etage und ist mit Parkett und Fußbodenheizung in allen Räumen ausgestattet. Zur Wohnung gehören zwei Balkone. Küche und Bad sind modern gefließt. Das Tageslichtbad verfügt über einen Doppelwaschtisch, eine Dusche, eine Badewanne, einen WMA. In der Wohnung befindet sich ebenfalls eine Abstellkammer. Das Haus verfügt über einen Aufzug.

sonstige Angaben

Haftungsausschluss Sämtliche Angaben in den Exposés bzw. Angaben zu den Objekten sind nach bestem Wissen und Gewissen erstellt und beruhen auf Angaben des Verkäufers oder Vermieters, bei geschätzten Größen handelt es sich um ca. Angaben, eine Haftung durch die Firma Heidrun Walther-Zierof Immobilien kann nicht übernommen werden. Sie sind selbst Eigentümer und suchen einen kompetenten Partner für die Vermarktung Ihrer Objekte? Sprechen Sie uns an - wir helfen Ihnen gern. Weitere Wohnungen finden Sie auf unserer Homepage www.walther-sohn.de

INTERESSE GEWECKT?

Objektdaten Drucken

Ihr Ansprechpartner

Marcus Walther
Diese E-Mail-Adresse ist vor Spambots geschützt! Zur Anzeige muss JavaScript eingeschaltet sein!
+49 341 4217273
+49 176 99638425

WEITER EMPFEHLENan Freunde und Familie


Weitere interessante Immobilien


 Merkzettel (0) KONTAKT
Wir benutzen Cookies
Wir nutzen Cookies auf unserer Website. Diese sind essenziell für den Betrieb der Seite - sogenannte Session-Cookies. Sie können selbst entscheiden, ob Sie die Cookies zulassen möchten. Bitte beachten Sie, dass bei einer Ablehnung womöglich nicht mehr alle Funktionalitäten der Seite zur Verfügung stehen.