Objektart
Mieten / Kaufen
Ort / Stadt


*Gohlis* Vermietete 2 Zi.-Whg. mit Balkon in liebevoll saniertem Altbau!

Objekt ID: 3903 (1/3903)
04155  Leipzig
Breitenfelder Str.   91 b
2 Zimmer
Fläche ca.
Kaufobjekt
gesch. Rate:  
Finanzierung berechnen
149.000 €
Kaufpreis
3,57 % inkl. MwSt. (Käuferprovision)
Käuferprovision

ZUSATZINFORMATIONEN

Kaufpreis:
149.000,00 €
Hausgeld:
195,00 €
Käuferprovision
3,57 % inkl. MwSt. (Käuferprovision)
Wohnfläche ca.:
52,69 m²
Zimmer:
2,0
Schlafzimmer:
1
Badezimmer:
1
Balkone:
1
Etage:
3. OG
Status
Vermietet

Ausstattung

Dusche
Badewanne
Fliesenboden
Parkettboden
Zentralheizung
Gasbefeuerung
Abstellraum
Baujahr:
1905
Zustand:
Vollsaniert
Altbau

Energiepass

Energiepass Art:
Verbrauch
gültig bis:
03.12.2028 00:00:00
Verbrauchkennwert:
48,2 kWh/(m²a)
Primärenergieträger:
Gas
Energieeffizienzklasse:
A
Ausstelldatum:
2018-12-04
Jahrgang:
2014
Gebäudeart:
wohn

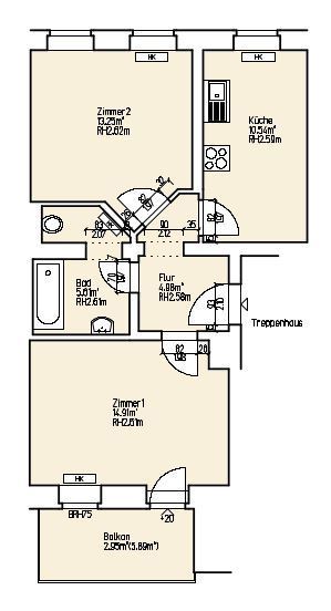
Objektbeschreibung

Liebevoll, sanierter Altbau (16 Wohneinheiten, Sanierung 2006) im beliebten Stadtteil Gohlis. Die angebotene Eigentumswohnung befindet sich in einem gepflegten Mehrfamilienhaus in Leipzig und ist ideal für Kapitalanleger geeignet. Die Wohnung ist derzeit zuverlässig vermietet, wodurch eine sofortige Einnahmequelle gewährleistet ist. Die Wohnung verfügt über 2 Zimmer und eine Wohnfläche von ca. 52,69 m². Sie besticht durch einen hellen Wohn- und Schlafbereich mit hochwertigem Parkettboden, ein modern gefliestes Badezimmer sowie einen Balkon, der zum ruhigen Innenhof ausgerichtet ist. Teilweise ist die Wohnung mit Deckenspots ausgestattet, die ein modernes Wohnambiente schaffen. Aufgrund des bestehenden Mietverhältnisses dürfen aus datenschutzrechtlichen Gründen keine Innenaufnahmen veröffentlicht werden. Besichtigungen sind ausschließlich nach vorheriger Absprache möglich.

Lage

Die Immobilie befindet sich im beliebten Leipziger Stadtteil Gohlis Vor allem durch die gute Verkehrsanbindung mit den öffentlichen Verkehrsmitteln ist diese Ecke vor allem bei Studenten oder Pendlern beliebt. S Bahn Haltestelle Coppiplatz nur wenige Minuten zu Fuß oder mit dem Rad erreichbar. Kleine Parks und Gartenanlagen in der Nähe laden zum Verweilen ein.

Ausstattung

Wohnfläche: ca. 52,69 m² Zimmer: 2 Böden: Parkett im Flur, Wohn- und Schlafzimmer Badezimmer: Modern gefliest Balkon: Ausrichtung zum ruhigen Innenhof Beleuchtung: Teils mit Deckenspots Vermietet: Ja, zuverlässige Mieterin Ideal für Kapitalanleger Die Wohnung ist seit August 2007 vermietet. Die Nettokaltmiete beträgt 400,00 € mtl. (entspricht 7,59 € pro m²). Die Jahresnettokaltmiete gesamt beträgt 4.800,- €. Besichtigungen sind ausschließlich nach vorheriger Absprache möglich.

sonstige Angaben

Haftungsausschluss Sämtliche Angaben in den Exposés bzw. Angaben zu den Objekten sind nach bestem Wissen und Gewissen erstellt und beruhen auf Angaben des Verkäufers oder Vermieters, bei geschätzten Größen handelt es sich um ca. Angaben, eine Haftung durch die Firma Heidrun Walther-Zierof Immobilien kann nicht übernommen werden. Weitere Wohnungen finden Sie auf unserer Homepage www.walther-sohn.de Sie sind selbst Eigentümer und suchen einen kompetenten Partner für die Vermarktung Ihrer Objekte? Sprechen Sie uns an - wir helfen Ihnen gern.

INTERESSE GEWECKT?

Objektdaten Drucken

Ihr Ansprechpartner

Marcus Walther
Diese E-Mail-Adresse ist vor Spambots geschützt! Zur Anzeige muss JavaScript eingeschaltet sein!
+49 341 4217273
+49 176 99638425

WEITER EMPFEHLENan Freunde und Familie


Weitere interessante Immobilien


 Merkzettel (0) KONTAKT
Wir benutzen Cookies
Wir nutzen Cookies auf unserer Website. Diese sind essenziell für den Betrieb der Seite - sogenannte Session-Cookies. Sie können selbst entscheiden, ob Sie die Cookies zulassen möchten. Bitte beachten Sie, dass bei einer Ablehnung womöglich nicht mehr alle Funktionalitäten der Seite zur Verfügung stehen.